Room in Sheffield

Area
300 ft²
Property type
Room
Bedroom
1 room

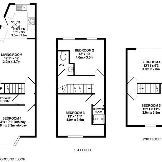
Features * A good sized patio/garden, perfect for enjoying some summer sun! * Great entertaining space in the open plan kitchen, living area * Ideal for students at Hallam's Collegiate Campus * Two bathrooms and an additional WC * Bills package option available A superb, spacious 4 bedroom STUDENT property, available July 2026! Located in the incredibly popular Ecclesall Road area, this is ideal for students at both universities! Close to local shops, supermarkets, pubs, restaurants and the City Centre! Great transport links to surrounding ...

  • This accommodation has priority for students
Rent
£416 pcm
Location
Sheffield, S11
Rental period
-
Verified landlord
Yes
Date
23 days ago
Available
Contact landlord
Utilities
Contact landlord
Deposit
Contact landlord
Prepaid rent
Contact landlord
Location