Room in Birmingham
-
Area
- 300 ft²
-
Property type
- Room
-
Bedroom
- 1 room
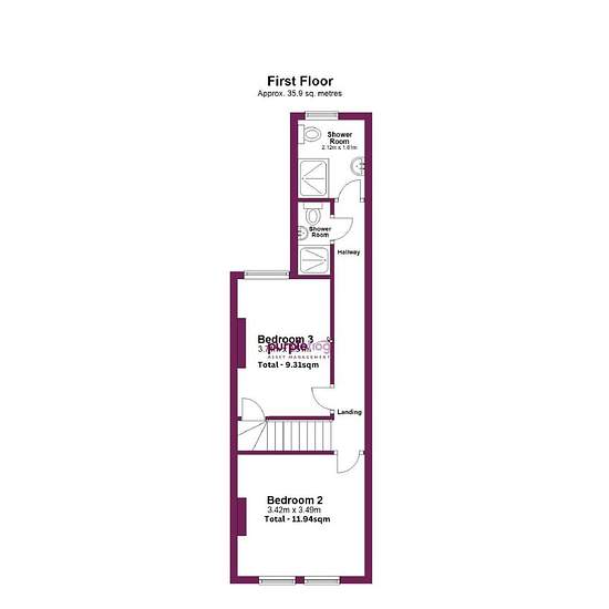
| £106 pppw ex bill | £136.77 pppw INCLUDING BILLS | AVAILABLE FOR THE 26/27 ACADEMIC YEAR | 3 double bedroom house | 2 Bathrooms | Tenancy Start Date 01/07/2026 | Ref: 16549 A well-presented home, located just off the Pershore Road and backing onto a lovely large park. The property has been recently redecorated throughout and features an industrial-style living room with large comfortable sofas and a 42-inch flatscreen TV, a bright and modern galley kitchen equipped with washing machine and dishwasher, and a separate study/breakfast area be...
- This accommodation has priority for students
- Rent
- £459 pcm
- Location
- Birmingham, B29
- Rental period
- -
- Verified landlord
- Yes
- Date
- 14 days ago
- Available
- 2026-07-01
- Utilities
- Contact landlord
- Deposit
- £500
- Prepaid rent
- Contact landlord
Location