Room in Birmingham

Area
300 ft²
Property type
Room
Bedroom
1 room

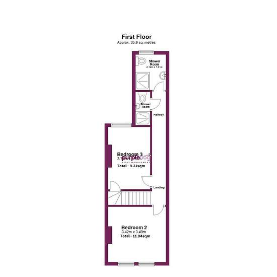
| £106 pppw ex bill | £136.77 pppw INCLUDING BILLS | AVAILABLE FOR THE 26/27 ACADEMIC YEAR | 3 double bedroom house | 2 Bathrooms | Tenancy Start Date 01/07/2026 | Ref: 16549 A well-presented home, located just off the Pershore Road and backing onto a lovely large park. The property has been recently redecorated throughout and features an industrial-style living room with large comfortable sofas and a 42-inch flatscreen TV, a bright and modern galley kitchen equipped with washing machine and dishwasher, and a separate study/breakfast area be...

  • This accommodation has priority for students
Rent
£459 pcm
Location
Birmingham, B29
Rental period
-
Verified landlord
Yes
Date
Today
Available
2026-07-01
Utilities
Contact landlord
Deposit
£500
Prepaid rent
Contact landlord
Location