5 bedroom house in Leicester
-
Area
- 1500 ft²
-
Property type
- House
-
Bedroom
- 5 rooms
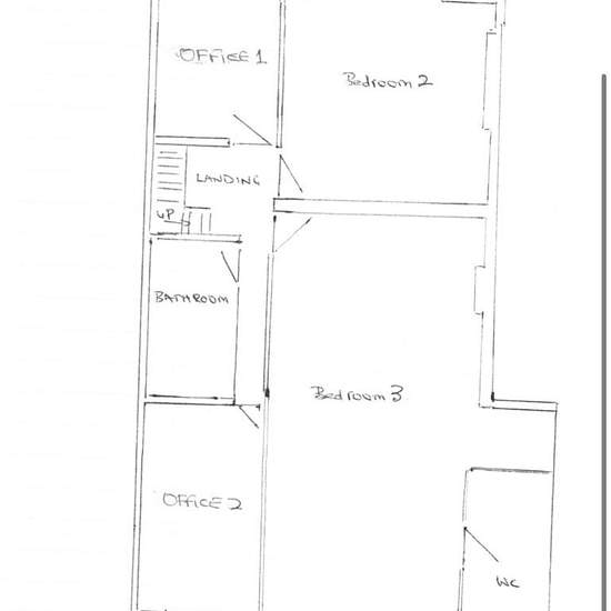
Property available for long term company let LE3 area leicester. Only supported living or children home providers Fire doors abs emergency lighting is in place Brand new bathrooms upstairs Floor plan not done to scale, ignore labels. As rooms can be used as bedrooms. Circa £3k rent negotiable.
- Rent
- £3,000 pcm
- Location
- Leicester, LE3
- Rental period
- -
- Verified landlord
- Yes
- Date
- Today
- Available
- 2026-02-01
- Utilities
- Contact landlord
- Deposit
- Contact landlord
- Prepaid rent
- Contact landlord
Location