3 bedroom house in Sidcup
-
Area
- 900 ft²
-
Property type
- House
-
Bedroom
- 3 rooms
Available now
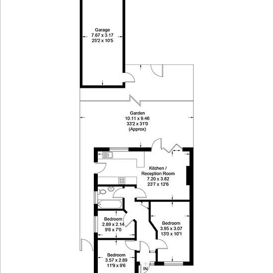
3 BEDROOMS SEMI-DETACHED BUNGALOW FRONT AND BACK GARDEN TWO DOUBLE BEDROOMS TILED FAMILY BATHROOM NEW WINDOWS AT THE FRONT SITUATED IN FRONT OF THE A2 DEPOSIT- £1990.00 COUNCIL TAX BAND- D EPC- D A very well presented and spacious 3 bedroom bungalow located within easy reach of local shops and transport links. The property boasts an open planned lounge into a modern kitchen with fully integrated appliances, to include the fridge freezer, washing machine and dishwasher. With UPVC patio doors to the lounge, this property invites floods of natu...
- Rent
- £1,725 pcm
- Location
- Sidcup, DA15
- Rental period
- -
- Verified landlord
- Yes
- Date
- 23 days ago
- Available
- Available now
- Utilities
- Contact landlord
- Deposit
- £1,990
- Prepaid rent
- Contact landlord
Location