Zimmer in Birmingham

Fläche
300 ft²
Immobilientyp
Zimmer
Zi
1 Zimmer

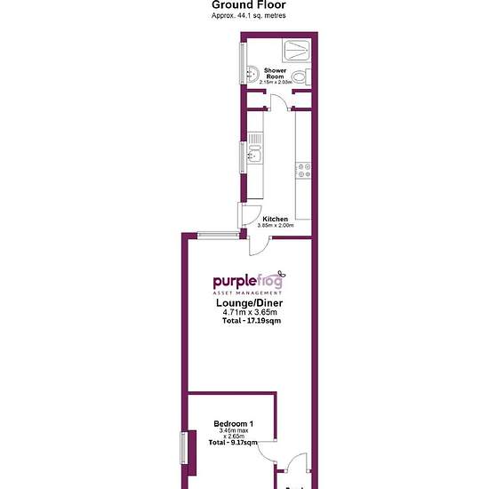
| £85 p.P./W. ohne Nebenkosten | £111.68 p.P./W. INKLUSIVE NEBENKOSTEN | 4 Doppelzimmer | VERFÜGBAR FÜR DAS AKADEMISCHE JAHR 26/27 | Mietbeginn 01/07/2026 | Ref: 25032 Nebenkosten enthalten: Gas, Ökostrom, Wasser, TV‑Lizenz, Highspeed‑Breitband, sofern möglich (eingeschränkt durch eine Fair‑Use‑Richtlinie). Dies ist eine geräumige Studentenunterkunft, ideal, wenn Sie eine preiswerte Immobilie knapp außerhalb des lebhaften Selly Oak suchen. Die Unterkunft liegt in der Nähe von Selly Park und ist etwa 20 Gehminuten von der University of Birmin...

Miete
368 £ pro Monat
Mietdauer
-
Verifizierter Vermieter
Ja
Datum
7 tage vor
Verfügbar
01.07.2026
Nebenkosten
Vermieter kontaktieren
Kaution
400 £
Vorausbezahlte Miete
Vermieter kontaktieren
Ort