5-Zimmer-Wohnung in Bournemouth
-
Fläche
- 1500 ft²
-
Immobilientyp
- Wohnung
-
Zi
- 5 Zimmer
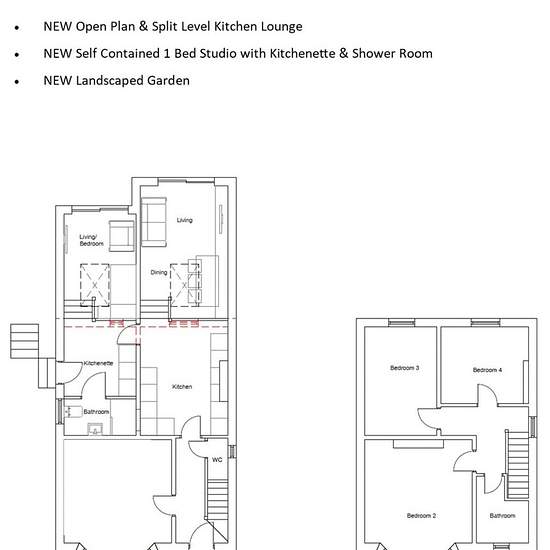
5 DOUBLE BEDROOMs WALKING DISTANCE TO UNI BRAND NEW Open Plan Kitchen / Diner / Lounge PRIVATE GARDEN 2 X BATHROOMS Available 01/09/2026 11.5 Month Tenancy Deposit - £3288.46 Holding Deposit - £657.69 BRAND NEW KITCHEN DINER LOUNGE *** 5 STAR LOCATION *** 5 STAR LANDLORD ***2 X Bathrooms *** Private Garden *** CALL CLARKES TO VIEW- 077 Do you want to view or reserve this property ? CLICK REQUEST DETAILS and follow the instructions. Please CLICK REQUEST DETAILS if you would like to book a viewing appointment or secure this property. We opera...
- Miete
- 2.850 £ pro Monat
- Ort
- Bournemouth, BH9
- Mietdauer
- -
- Verifizierter Vermieter
- Ja
- Datum
- 12 tage vor
- Verfügbar
- 01.09.2026
- Nebenkosten
- Vermieter kontaktieren
- Kaution
- 3.288 £
- Vorausbezahlte Miete
- Vermieter kontaktieren
Ort