3-Zimmer-Wohnung in London
-
Fläche
- 969 ft²
-
Immobilientyp
- Wohnung
-
Zi
- 3 Zimmer
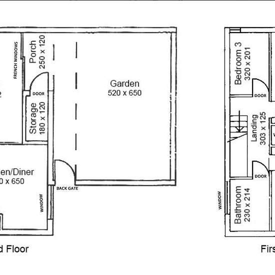
Spacious three-bedroom maisonette (approx. 95 sq m / 1,020 sq ft) arranged over two floors, ideally located on the north side of Clapham Common. The property features a large open-plan kitchen and dining area, a separate lounge with French doors opening onto a porch, and a private patio garden — ideal for entertaining or working from home. Upstairs are three well-proportioned double bedrooms, a bathroom with WC, and a wide landing with additional storage. Ideal for a couple, small family, or professional sharers seeking generous living space...
- Miete
- 2.895 £ pro Monat
- Ort
- London, SW4
- Mietdauer
- -
- Verifizierter Vermieter
- Nein
- Datum
- Heute
- Verfügbar
- 03.02.2026
- Nebenkosten
- Vermieter kontaktieren
- Kaution
- Vermieter kontaktieren
- Vorausbezahlte Miete
- Vermieter kontaktieren
Ort