3-Zimmer-Wohnung in Ipswich

Fläche
900 ft²
Immobilientyp
Wohnung
Zi
3 Zimmer

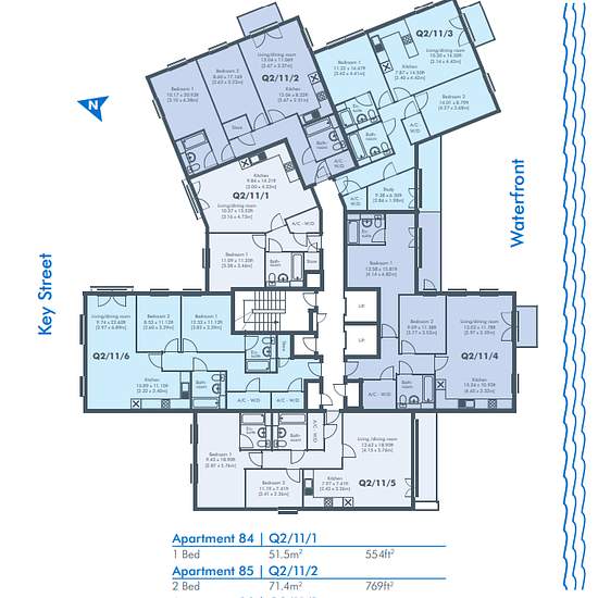
THE WINERACK DEVELOPMENT LAGE: IPSWICH MARINA DREI SCHLAFZIMMER WOHN-/ESSBEREICH KÜCHE MIT EINBAUGERÄTEN ZWEI BALKONE ZUGEWIESENER STELLPLATZ KEINE KAUTION-OPTION VERFÜGBAR — MEHR SCHUTZ FÜR VERMIETER Diese Dreizimmerwohnung befindet sich im Herzen der Ipswich Marina in der ikonischen Winerack-Entwicklung und bietet einfachen Zugang zu den Hauptverkehrsstraßen sowie zum Bahnhof Ipswich. Die geräumige Unterkunft verfügt über einen Eingangsflur, ein Badezimmer mit Fußbodenheizung, einen Flurschrank mit Waschmaschine/Trockner, eine Küche mit Ei...

Miete
1.695 £ pro Monat
Mietdauer
-
Verifizierter Vermieter
Ja
Datum
15 tage vor
Verfügbar
Vermieter kontaktieren
Nebenkosten
Vermieter kontaktieren
Kaution
Vermieter kontaktieren
Vorausbezahlte Miete
Vermieter kontaktieren
Ort