3-Zimmer-Haus in Wembley
-
Fläche
- 881 ft²
-
Immobilientyp
- Haus
-
Zi
- 3 Zimmer
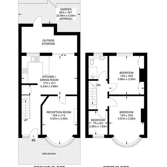
Lovely 3 bedroom house Bay fronted reception room Off street parking Close to Wembley Central Open plan kitchen Outside storage room Fabulous garden Available with Zero Deposit Tucked away on a peaceful cul de sac in Wembley, this superb 3 bedroom terraced house offers well presented and open plan interiors, large rear garden and off street parking. Victor Grove is located close to the quiet Alperton which offers great commuter options via Alperton Underground Station and a good selection of local amenities on Ealing Road.
- Miete
- 2.600 £ pro Monat
- Ort
- Wembley, HA0
- Mietdauer
- -
- Verifizierter Vermieter
- Ja
- Datum
- 2 tage vor
- Verfügbar
- Vermieter kontaktieren
- Nebenkosten
- Vermieter kontaktieren
- Kaution
- Vermieter kontaktieren
- Vorausbezahlte Miete
- Vermieter kontaktieren
Ort