3-Zimmer-Haus in London

Fläche
988 ft²
Immobilientyp
Haus
Zi
3 Zimmer

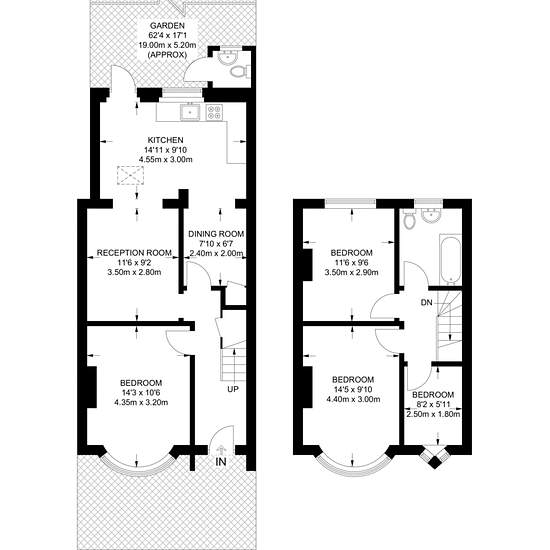
Excellently presented 3 bedroom property with a study Set on a quiet street Bright reception Private garden Excellently presented thorughout Neutral decor 24 minute commute to Kings Cross station from Lea Bridge station 6 minute commute to Stratford International from Lea Bridge station Available with Zero Deposit Set on a peaceful road this excellently presented 3 bedroom property with a study has been renovated throughout and boasts a bright eat in kitchen, a generous reception, a private garden to the rear. The property is set in an excel...

Miete
2.995 £ pro Monat
Mietdauer
-
Verifizierter Vermieter
Ja
Datum
20 tage vor
Verfügbar
Vermieter kontaktieren
Nebenkosten
Vermieter kontaktieren
Kaution
Vermieter kontaktieren
Vorausbezahlte Miete
Vermieter kontaktieren
Ort