3-Zimmer-Haus in Coalville
-
Fläche
- 900 ft²
-
Immobilientyp
- Haus
-
Zi
- 3 Zimmer
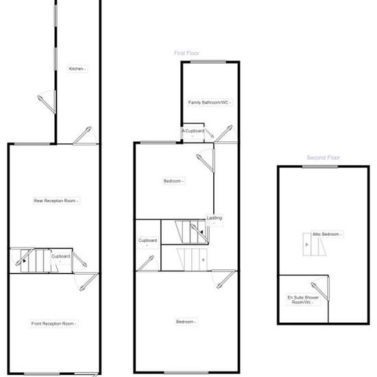
Large 3 bedroom house with (En-suite Loft room)We are please to offer this 3 bedroom, 2 bathroom terraced house close to Coalville town centre. Comprising of front and rear reception rooms, good size kitchen. The first floor landing gives access to two bedrooms and a family bathroom/wc. A real feature of the property is the converted loft space with a bedroom with en suite shower room/wc. Further benefiting from gas central heating system and double glazing. The rear garden is mainly laid to lawn.Spacious accommodation with a master bedroom ...
- Miete
- 875 £ pro Monat
- Ort
- Coalville, LE67
- Mietdauer
- -
- Verifizierter Vermieter
- Ja
- Datum
- Gestern
- Verfügbar
- 16.01.2026
- Nebenkosten
- Vermieter kontaktieren
- Kaution
- Vermieter kontaktieren
- Vorausbezahlte Miete
- Vermieter kontaktieren
Ort