1-Zimmer-Wohnung in London
-
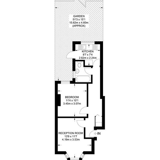
Fläche
- 454 ft²
-
Immobilientyp
- Wohnung
-
Zi
- 1 Zimmer
Fantastic ground floor 1 bedroom flat Bright and spacious reception room Well-sized bedroom Private garden Separate kitchen Refurbished throughout Wide range of shops and eateries nearby Quiet location close to lovely green parks Available with Zero Deposit Set on the ground floor, this lovely 1 bedroom flat has been refurbished throughout, benefiting from a bright and spacious reception room, private garden and a quiet setting close to a range of shops and lovely parks. The property is ideally located in a quiet residential area of Upper No...
- Miete
- 1.750 £ pro Monat
- Ort
- London, SE19
- Mietdauer
- -
- Verifizierter Vermieter
- Ja
- Datum
- 9 tage vor
- Verfügbar
- Vermieter kontaktieren
- Nebenkosten
- Vermieter kontaktieren
- Kaution
- Vermieter kontaktieren
- Vorausbezahlte Miete
- Vermieter kontaktieren
Ort